064 Weingut Zull / 2007 Details

von dem auseinander  geschnittenen haus überrascht, von dem herausragenden blickableiter hineingeführt betreten sie gemütliches gemach, dem beides anzumerken ist, nämlich, dass es öffentlich – das ist schon von aussen nicht zu übersehen -  und auch privat ist – auch das ist von aussen nicht zu verkennen.                                                    

                                                                     Jan Tabor

                                   in Young Viennese Architects

Schrattenthal 9 / Niederösterreich
SPUTNIC, DI Norbert Steiner
Auftraggeber: Weingut Zull

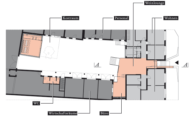
Nutzfläche: 253 m2

Planungsbeginn: 06/2004
Fertigstellung: 08/2007


   

SPUTNIC Architektur, Schönbrunner Str. 38/23, A-1050 Wien, T/F +43 (0)1 585 44 12, E office@sputnic.at

webdesign by bauer, konzept & gestaltung