094 Haus Zull / 2013 Details

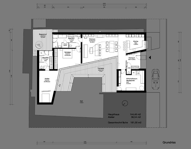
Ein typisches L-förmiges Haus, zur Strasse hin geschlossen, Wirtschaftsraum und Küche nach vorne, die Wohnräume nebeneinander aufgefädelt im Hof, das alles zusammengefasst mit durchgehender Glasfront und breiter Terrasse. 

Vom Hof aus unsichtbar, versteckt sich noch ein zweiter kleiner Hof, der nur durch die beiden Badezimmer erreichbar ist und vom Architekten augenzwinkernd ´Beautyhof´ getauft wurde.

 

                                                               Maik Novotny

                                                            in Der Standard

 

Schrattenthal 25 / Niederösterreich

SPUTNIC, DI Norbert Steiner

Auftraggeber: Familie Zull

Kunst: Heimo Zobernig

Nutzfläche: 181 m2

Planungsbeginn: 12/2010

Fertigstellung: 12/2012

 

Nominiert für den German Design Award 2018

Auszeichnung: SolarPlexus 2012 

   

SPUTNIC Architektur, Schönbrunner Str. 38/23, A-1050 Wien, T/F +43 (0)1 585 44 12, E office@sputnic.at

webdesign by bauer, konzept & gestaltung