100 Weinbergsuiten / 2015 Details

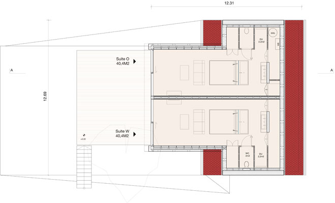
In den Weingärten rund um Roseldorf gelegen, bieten die beiden Weinbergsuiten zu je 40 m2, Platz für je zwei Personen. Die Suiten befinden sich im erweiterten Dachraum eines alten Presshauses in der Kellergasse von Roseldorf. Die Erweiterung ist von der Kellergasse aus nicht sichtbar.

Roseldorf / Niederösterreich

SPUTNIC, DI Norbert Steiner

Auftraggeber: Weingut Weber

Nutzfläche: 80,8 m2

Planungsbeginn: 08/2013

Fertigstellung: 05/2015

   

SPUTNIC Architektur, Schönbrunner Str. 38/23, A-1050 Wien, T/F +43 (0)1 585 44 12, E office@sputnic.at

webdesign by bauer, konzept & gestaltung